Aravel Residence , Kamez – Shitet Apartament 1+1 ! - Century 21 Albania
Kamez Tirana Albania
ID e Pronës: IRG128009

Aravel Residence , Kamez – Shitet Apartament 1+1 !

67,000 €

Sip. Totale  71m2

Sip. e brendshme  61m2

Dhomat e gjumit  1

Kati 3

Statusi  Në ndërtim

Lloji  Apartament

Shikime:43

Ka hipoteke: Në proces certifikimi

Në dispozicion

Përshkrim

Aravel Residence – Shitet Apartament 1+1 !

Në qender te Kamzës, vetëm pak minuta nga qendra, Bashkia dhe të gjitha institucionet kryesore, ofrohet për shitje një apartament modern në projektin Aravel Residence.

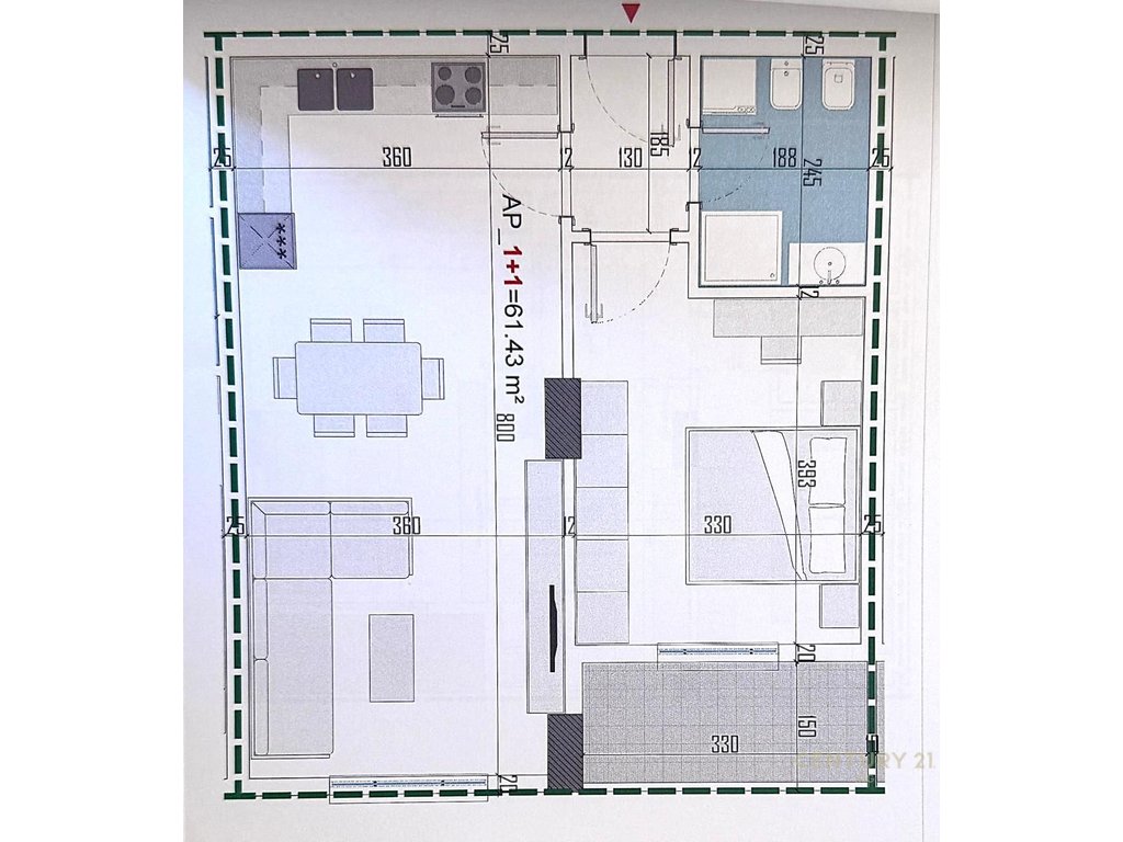
Organizim: 1 dhoma gjumi, sallon + kuzhinë, 1 tualete, ballkon

Tipologjia: 1+1
Planimetria: shumë e rregullt, me shfrytëzim maksimal të hapësirës
Sipërfaqja neto: 61.43 m²
Sipërfaqja bruto: 71.12 m²

Apartamenti ndodhet në fazën e gropës, duke i dhënë blerësit mundësinë të përfitojë çmim shumë më të favorshëm në këtë fazë të projektit.

Vendndodhja
Pozicionimi është ideal: pranë qendrës së Kamzës, institucioneve shtetërore, shkollave, linjave të transportit dhe shërbimeve të përditshme. Zona po zhvillohet me ritme të shpejta dhe është shumë e përshtatshme si për banim, ashtu edhe për investim.

Informacioni i pronës

Ashensor: Po

Tualetet: 1

Vendodhja ne Harte
Interest Rate Image

Pyesni për këtë pronë

Të interesuar për këtë pronë? Plotësoni formularin e mëposhtëm dhe ekspertët tanë të pasurive të paluajtshme do t'ju kontaktojnë për më shumë detaje, duke përfshirë shoqërimin në pronë dhe përgjigjen e çdo pyetjeje që mund të keni.

Emri

Mbiemri

Adrese Email

Numër Telefoni

Mesazh

Llogaritni normën tuaj të interesit

Përcaktoni sa interes do të paguani për kredinë ose kursimet tuaja me këtë mjet të lehtë për t'u përdorur.

Çmimi i shitjes

Parapagim

Afati i kredisë (vite)

Interesi