FOR SALE 3+1+2+3 APARTMENT WITH BALCONIES AT THE RESIDENCE "PORTA E RE" SAUK! - Century 21 Albania
Rezidenca "Porta e Re" Tirana Albania
Property ID: Gold124398

FOR SALE 3+1+2+3 APARTMENT WITH BALCONIES AT THE RESIDENCE "PORTA E RE" SAUK!

Price upon request

Gross Area  152m2

Interior Area  130m2

Bedrooms  3

Floor 1

Status  Under Construction

Type  Apartment

Not Furnished

Website Views:196

Has Certificate: In certification process

Available

Description

FOR SALE APARTMENT 3+2+3 BALCONIES AT THE RESIDENCE "PORTA E RE" SAUK!

Residence “Porta e Re”, Sauk – a modern residential complex offering tranquility, greenery, and security, just minutes away from the center of Tirana. Apartments with quality layout, natural lighting, and open views, surrounded by modern infrastructure and recreational areas. A perfect choice for comfortable living and long-term investment.

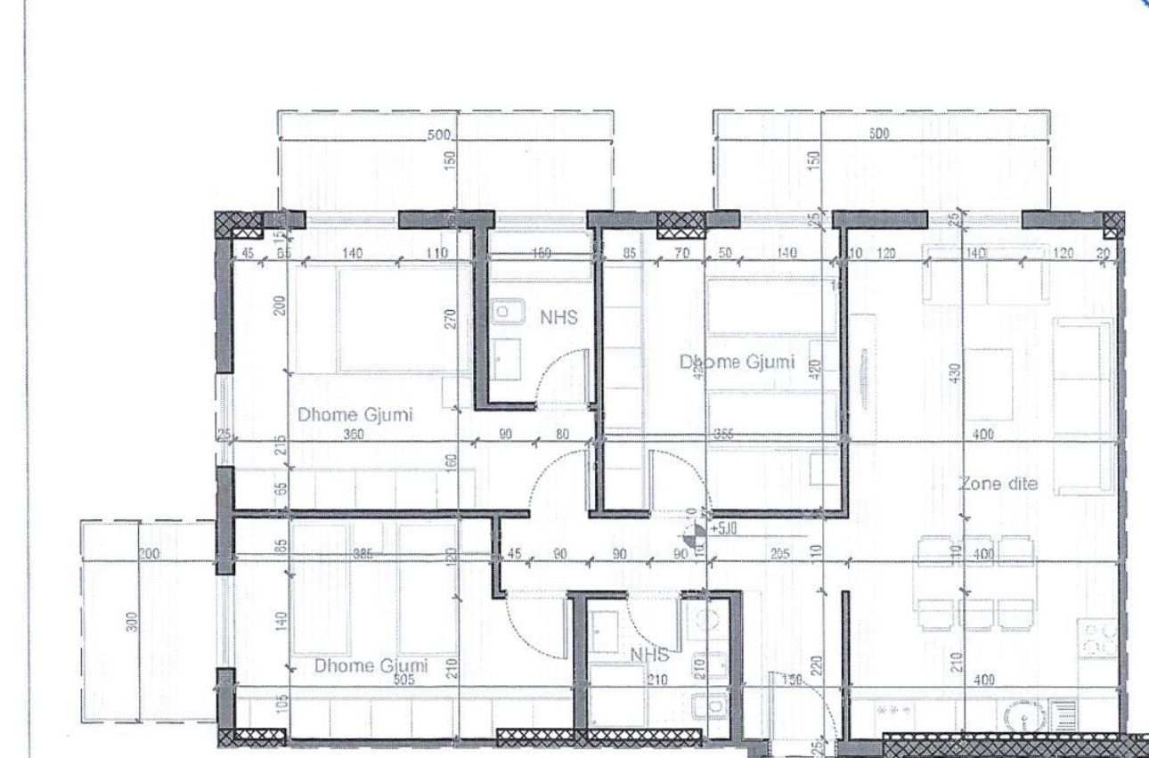
The apartment is located on the first floor. It has a net area of 129.5 m2 and a total area of 151.86 m2. (see floor plan) It has a very good layout and a regular floor plan. It is illuminated from all sides as it has access to balconies from almost all rooms and spaces. It has a distributing corridor, kitchen area, and living room. There is the possibility to divide it into two 1+1 apartments.
It consists of:
- Corridor
- Living room and kitchen area
- 3 bedrooms
- 2 bathrooms
- 3 balconies

For more information or to schedule a visit to the property, contact us!

Property info

Elevator: Yes

Not Furnished

Baths: 2

Living room:1

Features and Amenities

CountrySide

Shopping Center

Green areas

Children's Playground

view to countryside

Position in Map
Interest Rate Image

Inquire about this property

Interested in this property? Fill out the form below, and our real estate experts will get back to you with more details, including scheduling a viewing and answering any questions you may have.

First name

Last name

Email Address

Phone Number

Message

Calculate your interest rate

Determine how much interest you'll pay on your loan or savings with this easy-to-use tool.

Sale Price

Down Payment

Term

Interest rate