OFFER – SERVICE UNIT FOR SALE ONLY FOR MARKET IN PASKUQAN! - Century 21 Albania
Tirana Albania
Property ID: Select127370

OFFER – SERVICE UNIT FOR SALE ONLY FOR MARKET IN PASKUQAN!

262,200 €

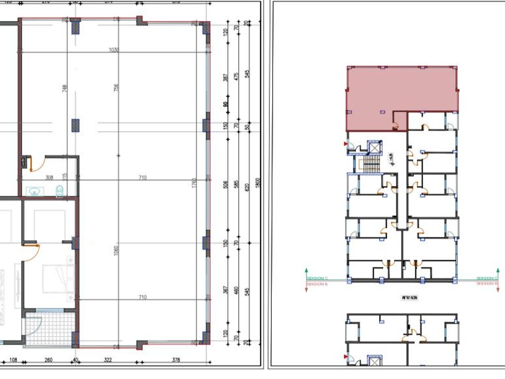
Gross Area  175m2

Interior Area  166m2

Bedrooms  1

Status  Under Construction

Type  Commercial

Not Furnished

Website Views:68

Has Certificate: In certification process

Available

Description

OPPORTUNITY – SERVICE UNIT FOR SALE ONLY FOR MARKET!

📍 Paskuqan – Strategic location in a populated area!

Ideal commercial unit for supermarkets, minimarkets, or food chains, located in an area with about 300 resident families – a perfect capacity for a sustainable and profitable business!

📐 Property details

Total area: 174.78 m²;
Indoor area: 166 m²;
Common area: 8 m²;
Floor: Ground;
Glass facade – visible and with immediate street access;

CONDITION: Sold only for MARKET (the space is specially designed for this function)

⭐ Highlights;
High resident traffic area (about 300 consolidated families)
High daily turnover potential
Regular and functional space;
Perfect organization possibilities for shelf division, cash register, storage, and refrigerators;
Ideal for long-term investment;

💶 Price: 1,500 €/m² – RARE OPPORTUNITY!

For more information or a property visit, contact us!

Property info

Elevator: Yes

Not Furnished

Baths: 1

Position in Map
Interest Rate Image

Inquire about this property

Interested in this property? Fill out the form below, and our real estate experts will get back to you with more details, including scheduling a viewing and answering any questions you may have.

First name

Last name

Email Address

Phone Number

Message

Calculate your interest rate

Determine how much interest you'll pay on your loan or savings with this easy-to-use tool.

Sale Price

Down Payment

Term

Interest rate