FOR SALE STUDIO APARTMENT AT RESIDENCE "PORTA E RE" SAUK! - Century 21 Albania
Rezidenca "Porta e Re" Tirana Albania
Property ID: Gold124380

FOR SALE STUDIO APARTMENT AT RESIDENCE "PORTA E RE" SAUK!

Price upon request

Gross Area  51m2

Interior Area  43m2

Bedrooms  1

Floor 4

Status  Under Construction

Type  Apartment

Not Furnished

Website Views:148

Has Certificate: In certification process

Available

Description

FOR SALE STUDIO APARTMENT AT RESIDENCE "PORTA E RE" SAUK!

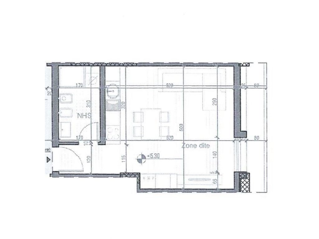
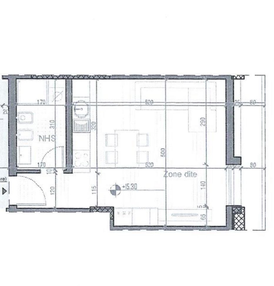
The apartment is located on the fourth residential floor. It has a net area of 43.4 m2 and a total area of 50.9 m2. (see floor plan)

Residence "Porta e Re", Sauk – a modern residential complex offering tranquility, greenery, and security, just a few minutes from the center of Tirana. Apartments with quality layout, natural lighting, and open views, surrounded by modern infrastructure and recreational spaces. A perfect choice for comfortable living and long-term investment.

For more information or to arrange a property visit, contact us.

Property info

Elevator: Yes

Not Furnished

Baths: 1

Features and Amenities

CountrySide

Shopping Center

Green areas

Children's Playground

view to countryside

Position in Map
Interest Rate Image

Inquire about this property

Interested in this property? Fill out the form below, and our real estate experts will get back to you with more details, including scheduling a viewing and answering any questions you may have.

First name

Last name

Email Address

Phone Number

Message

Calculate your interest rate

Determine how much interest you'll pay on your loan or savings with this easy-to-use tool.

Sale Price

Down Payment

Term

Interest rate