1+1 Apartment for Sale – Near Marina Bay - Century 21 Albania
Vlorë Albania
Property ID: Coast127063

1+1 Apartment for Sale – Near Marina Bay

Price upon request

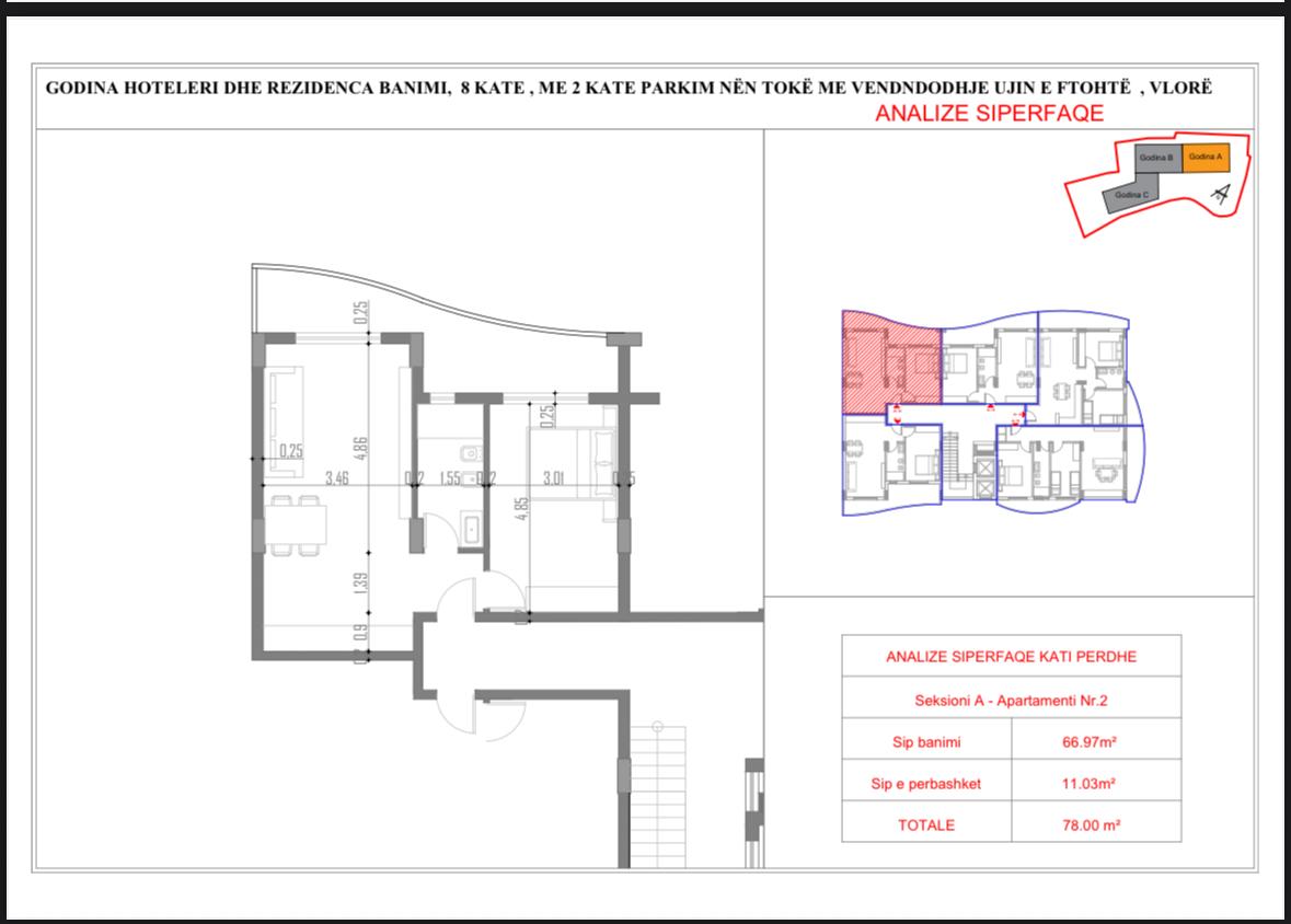
Gross Area  78m2

Interior Area  67m2

Bedrooms  1

Floor 5

Status  Under Construction

Type  Apartment

Website Views:139

Has Certificate: Yes

Available

Description

Apartment 1+1 for Sale – Near Marina Bay

A beautiful 1+1 apartment, 78 m², is for sale on the 5th floor of a modern residence located near the Marina Bay complex. The residence is under construction and is expected to be completed in June 2026.

Apartment composition:

• Bedroom
• Living area with integrated kitchen
• Bathroom with natural ventilation (window)
• Balcony accessible from both the living area and the bedroom

Special feature: The apartment is fully west-facing, providing guaranteed sea views enjoyed from both the bedroom and the living area.

The residence offers high construction standards, 24/7 security, and combines residential living with hotel services, including a pool accessible to residents for a monthly fee.

Ideal investment – perfect for family living or seasonal use.
For a property visit, please contact us!

Property info

Elevator: Yes

Baths: 1

Living room:1

Position in Map
Interest Rate Image

Inquire about this property

Interested in this property? Fill out the form below, and our real estate experts will get back to you with more details, including scheduling a viewing and answering any questions you may have.

First name

Last name

Email Address

Phone Number

Message

Calculate your interest rate

Determine how much interest you'll pay on your loan or savings with this easy-to-use tool.

Sale Price

Down Payment

Term

Interest rate