OFFICE SPACE FOR RENT AT KIKA 3 COMPLEX! - Century 21 Albania
Kompleksi Kika 2 Tirana Albania
Property ID: IRG128968

OFFICE SPACE FOR RENT AT KIKA 3 COMPLEX!

750 € /month

Gross Area  67m2

Interior Area  58m2

Bedrooms  1

Floor 5

Status  Under Construction

Type  Office

Not Furnished

Website Views:71

Has Certificate: In certification process

Available

Description

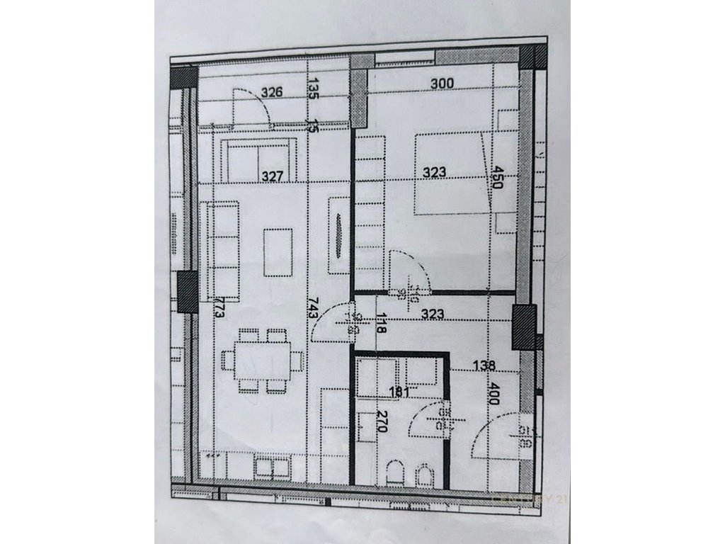
Office Space for Rent, Clinic at Kika 3 Complex, the building is completed in March 2026. The space is located on the 5th floor of a new building and is organized into two workspaces, a bathroom, a corridor, and a balcony. It is available for offices or clinics of various profiles. The price is 750 Euros net. For more details, contact me!

Property info

Elevator: Yes

Not Furnished

Baths: 1

Position in Map
Interest Rate Image

Inquire about this property

Interested in this property? Fill out the form below, and our real estate experts will get back to you with more details, including scheduling a viewing and answering any questions you may have.

First name

Last name

Email Address

Phone Number

Message