SALES CONTINUE AT LOGER PARADISE RESIDENCE!!! INSTALLMENT PAYMENT OPTION AVAILABLE! - Century 21 Albania
Golem Durrës Albania
Property ID: Roy133856

SALES CONTINUE AT LOGER PARADISE RESIDENCE!!! INSTALLMENT PAYMENT OPTION AVAILABLE!

111,320 €

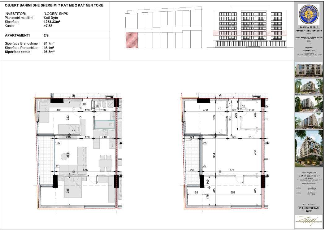
Gross Area  97m2

Interior Area  82m2

Bedrooms  1

Floor 2

Status  Under Construction

Type  Apartment

Not Furnished

Website Views:90

Has Certificate: No

Available

Description

Modern residence near the center of Golem, designed with contemporary architecture and elegant style. The building stands out for its unique facade with greenery elements and spacious balconies that offer comfort and relaxation space.

It is located only 300 meters from the sea, in a very good and developed area, close to all facilities such as markets, bars, restaurants, and every necessary service. Ideal for both living and investment.

Price: 1150€ / m2

Payment options:
• 30% at the time of contract
• 30% after 6 months
• 30% after 6 months
• 10% upon key delivery

A very good opportunity to invest in one of the most sought-after areas of Golem.

For more information, contact us.

Property info

Elevator: Yes

Not Furnished

Baths: 1

Living room:1

Features and Amenities

Lift

c21al-new.wi_fi

Shopping Center

Train Station

fire station

Historic Area

Police

School

Public transports

Supermarket

gymnasium

taxi rank

c21al-new.view_to_dam

Public Lighting

Position in Map
Interest Rate Image

Inquire about this property

Interested in this property? Fill out the form below, and our real estate experts will get back to you with more details, including scheduling a viewing and answering any questions you may have.

First name

Last name

Email Address

Phone Number

Message

Calculate your interest rate

Determine how much interest you'll pay on your loan or savings with this easy-to-use tool.

Sale Price

Down Payment

Term

Interest rate