Sale | Premium Villa | Farkë, Tirana | Modern Architecture & Absolute Privacy - Century 21 Albania
Tirana Albania
Property ID: CAPITAL134336

Sale | Premium Villa | Farkë, Tirana | Modern Architecture & Absolute Privacy

756,820 €

Gross Area  316m2

Interior Area  316m2

Bedrooms  3

Status  Under Construction

Type  Villa

Not Furnished

Website Views:30

Has Certificate: In certification process

Available

Description

An elite villa is available for sale, part of a modern residence in the most sought-after area of Farka, Tirana.

Designed for premium family living, this 4-story villa (1 basement floor + 3 residential floors) offers maximum privacy, functional organization, and high construction standards.

Location

Farka – an elite residential area, quiet and green, with quick access to the center of Tirana.
An ideal combination of nature and urban comfort.

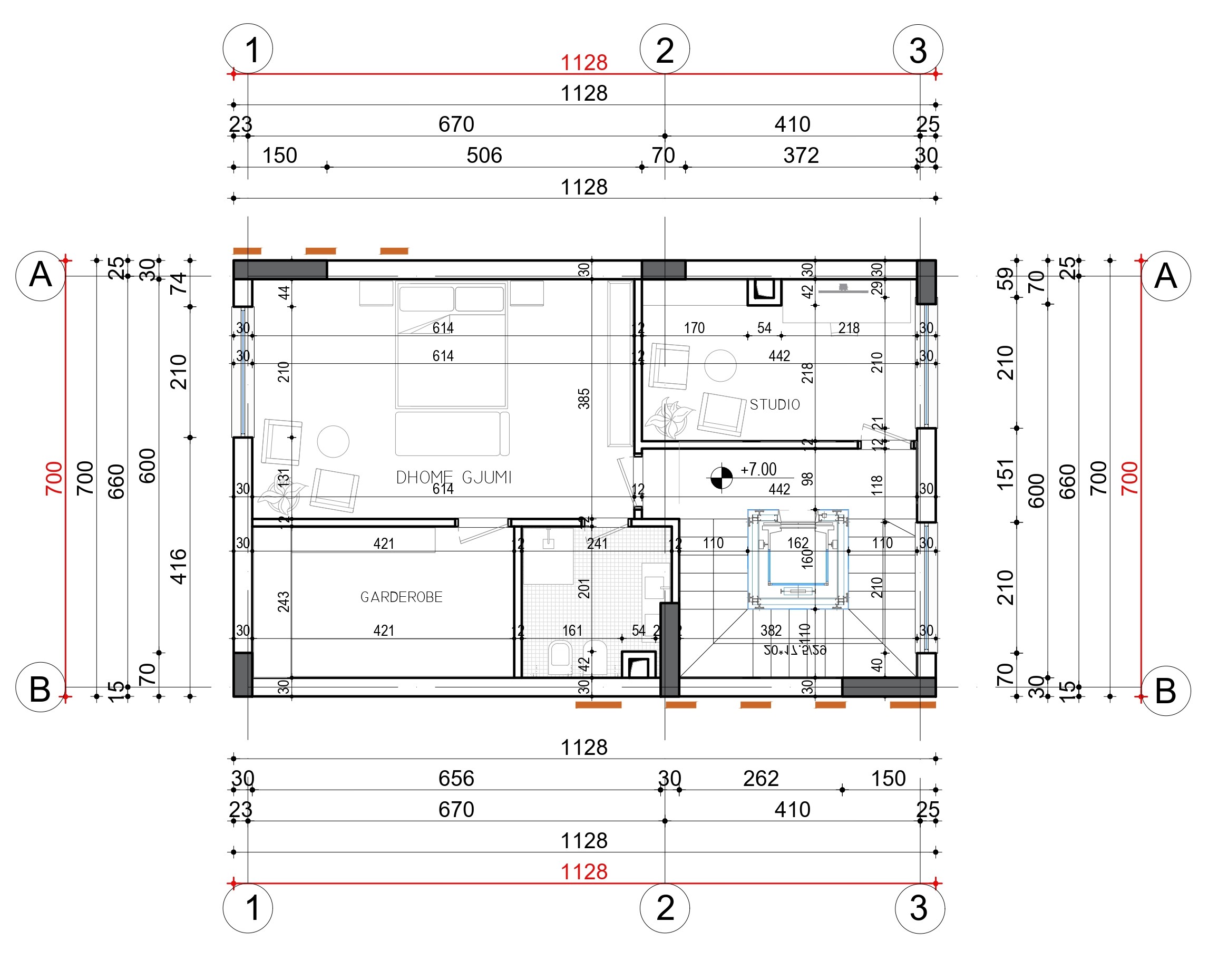
Functional Organization

Basement floor
• Two parking spaces
• Gym
• Laundry
• Storage

Ground floor
• Spacious living room
• Kitchen + open space dining
• Toilet
• Direct exit to private yard

First floor
• 2 Bedrooms {each with wardrobe}
• Toilet

Second floor
• Master bedroom / studio
• Wardrobe
• Access to panoramic terrace

Usable terrace with relaxation and entertainment potential

Architecture & Materials

• Modern minimalist style
• Facade with HPL panels and decorative wood elements
• Large windows for maximum natural lighting
• Clean and elegant architectural lines
• Project approved by Studio Atelier 4

Why is it a smart investment?

Area with sustainable value growth
High construction standards
Ideal for family living or long-term investment
Privacy and premium living quality

Contact us for more information and a private visit to the property.

Property info

Elevator: No

Not Furnished

Baths: 3

Living room:1

Features and Amenities

View to lake

view to mountain

c21al-new.terrace

garden

c21al-new.gym

Garage

outdoor parking

c21al-new.dryer

c21al-new.wardrobes

Storage room

Indoor Parking

Public Lighting

CountrySide

Shopping Center

Public transports

Supermarket

Pharmacy

Green areas

Highway

Bank

Position in Map
Interest Rate Image

Inquire about this property

Interested in this property? Fill out the form below, and our real estate experts will get back to you with more details, including scheduling a viewing and answering any questions you may have.

First name

Last name

Email Address

Phone Number

Message

Calculate your interest rate

Determine how much interest you'll pay on your loan or savings with this easy-to-use tool.

Sale Price

Down Payment

Term

Interest rate