Shitet vilë 3 kateshe tek Perla Residence në Mjull - Bathore - Century 21 Albania
Tirana Albania
ID e Pronës: smart129601

Shitet vilë 3 kateshe tek Perla Residence në Mjull - Bathore

850,000 €

Sip. Totale  481m2

Sip. e brendshme  426m2

Dhomat e gjumit  4

Kati 3

Statusi  Listimet e fundit

Lloji  Vilë

Shikime:253

Ka hipoteke: Në proces certifikimi

Në dispozicion

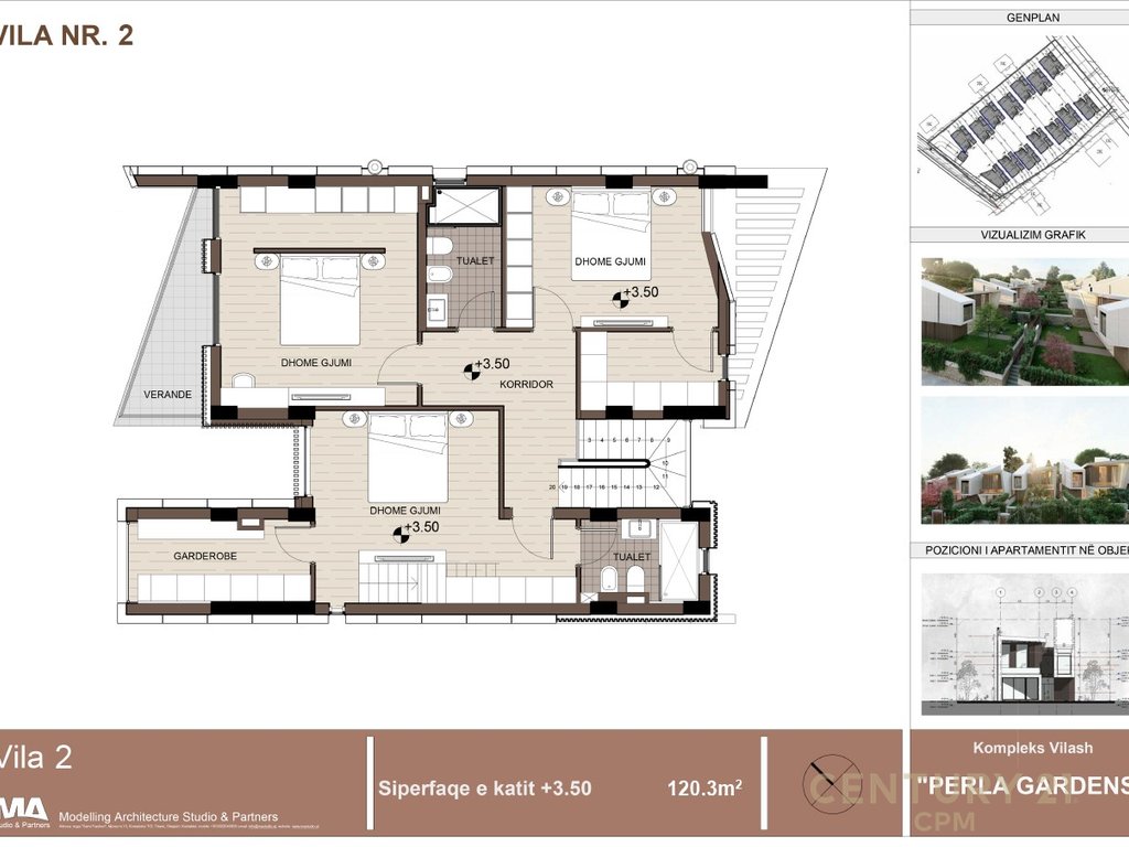
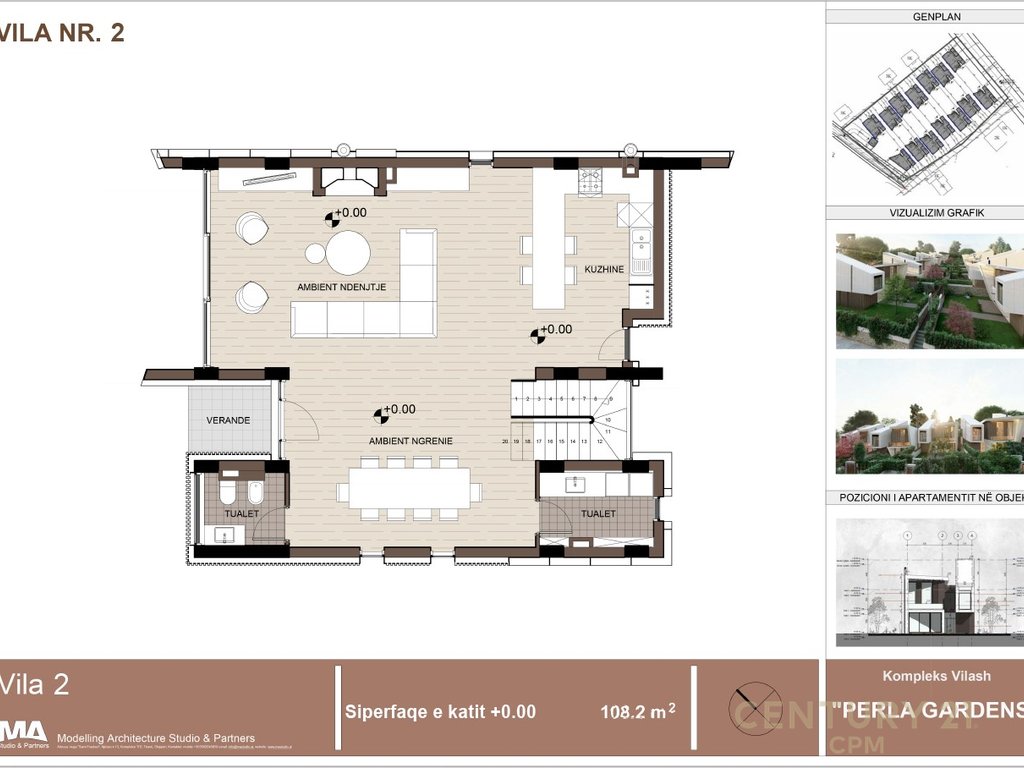
Përshkrim

Kjo vilë moderne ndodhet në zonën e Mjull - Bathore në Tiranë dhe ofron tre kate banimi, e përshtatshme për familje të mëdha ose investime afatgjata.
• Sipërfaqe neto: 425.7 m²
• Sipërfaqe bruto: 480.5 m²
• 2 dhoma ndenjeje
• 4 dhoma gjumi
• 5 tualete
• 3 kate banimi
• 2 POSTE PARKIMI te mbyllura me qepen
• Hipoteka në proces certifikimi
• Vit ndërtimi: 2025
• E përshtatshme për banim familjar ose investim
• Për më shumë informacion, ju lutem na kontaktoni!

Informacioni i pronës

Ashensor: Jo

Tualetet: 5

Dhomen e ndenjes:2

Vendodhja ne Harte
Interest Rate Image

Pyesni për këtë pronë

Të interesuar për këtë pronë? Plotësoni formularin e mëposhtëm dhe ekspertët tanë të pasurive të paluajtshme do t'ju kontaktojnë për më shumë detaje, duke përfshirë shoqërimin në pronë dhe përgjigjen e çdo pyetjeje që mund të keni.

Emri

Mbiemri

Adrese Email

Numër Telefoni

Mesazh

Llogaritni normën tuaj të interesit

Përcaktoni sa interes do të paguani për kredinë ose kursimet tuaja me këtë mjet të lehtë për t'u përdorur.

Çmimi i shitjes

Parapagim

Afati i kredisë (vite)

Interesi