SHESIM VILE TE "LUNDRA VILLAGE & RESIDENCES" - Century 21 Albania
Tirana Albania
ID e Pronës: Neom133574

SHESIM VILE TE "LUNDRA VILLAGE & RESIDENCES"

937,000 €

Sip. Totale  545m2

Sip. e brendshme  416m2

Dhomat e gjumit  5

Kati 2

Statusi  Në ndërtim

Lloji  Vilë

E pa mobiluar

Shikime:233

Ka hipoteke: Në proces certifikimi

Në dispozicion

Përshkrim

Lundra Village & Residence ofron vilat e përsosura për një jetë të rehatshme dhe të qetë, vetëm disa minuta larg Tiranës. Këtu do të gjeni hapësira private të gjelbra dhe zona për aktivitet.

PSE LUNDRA?
Sepse këtu çdo detaj është menduar për të sjellë komfort maksimal, privatësi të pakrahasueshme dhe një ambient natyror që frymëzon qetësi.

● HAPESIRA TË GJELBËRUARA DHE KOPSHTE PERSONALE
● SIGURIA DHE MBROJTJA
● NDRIÇIM NATYRAL
● AMBIENTE SHËRBIMI & ZONA ARGËTIMI

E vendosur në zonën e Farkës, vetëm 11.2 km larg nga qendra e Tiranës, LUNDRA Village & Residence ofron një kombinim të shkëlqyer të privatësisë dhe qasjes së shpejtë në qytet.

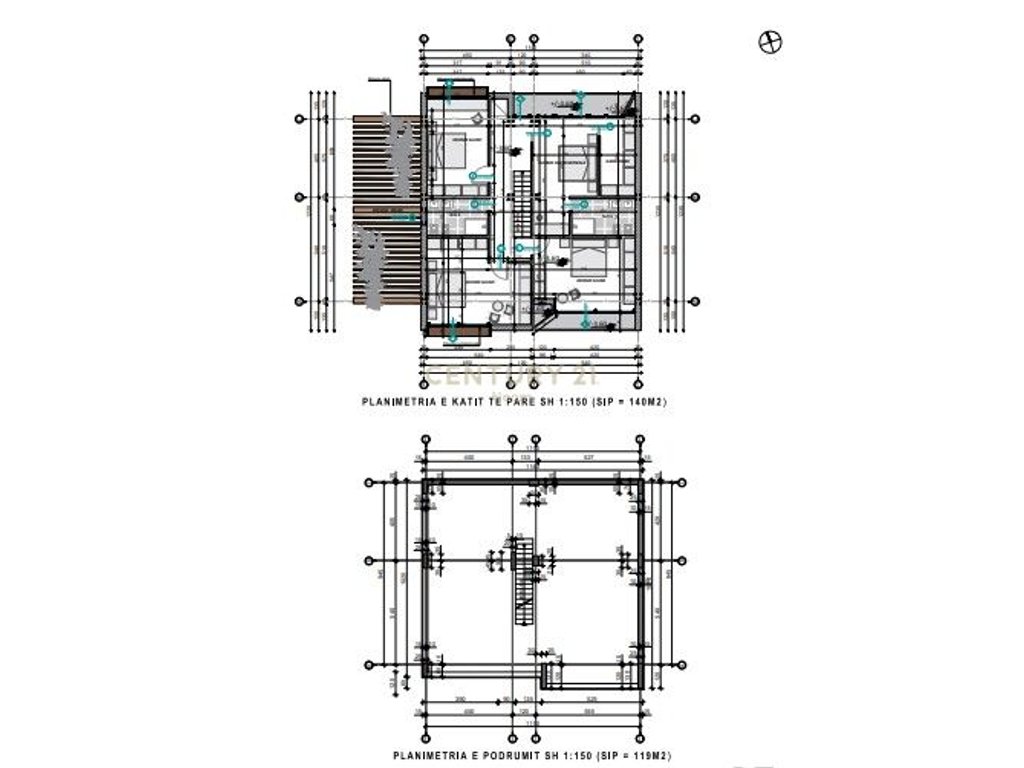
► Informacion teknik mbi vilen:
● Siperfaqe kati -1: 119m2
● Siperfaqe kati 0: 119m2 (Sallon i bollshem me ambient gatimi, dhoma e miqve, tualet, lavanderi)
● Siperfaqe kati 1: 140m2 (4 dhoma gjumi, 2 tualete)
● Siperfaqe verande: 37.6m2
● SIPERFAQE TOTALE NDERTIMI: 415.6M2

► Informacion shtese:
● Poste parkimi: 2
● Siperfaqe parcele: 441.87m2
● Siperfaqe te perbashketa: 88.32m2
● Siperfaqe totale trualli: 530.18m2

Residenca pritet te perfundoje ne fund te vitit 2028.

Mundesi pagese me keste.

Per me shume informacion me kontaktoni!

Informacioni i pronës

Ashensor: Jo

E pa mobiluar

Tualetet: 3

Dhomen e ndenjes:1

Sip. Toke: 442

Vendodhja ne Harte
Interest Rate Image

Pyesni për këtë pronë

Të interesuar për këtë pronë? Plotësoni formularin e mëposhtëm dhe ekspertët tanë të pasurive të paluajtshme do t'ju kontaktojnë për më shumë detaje, duke përfshirë shoqërimin në pronë dhe përgjigjen e çdo pyetjeje që mund të keni.

Emri

Mbiemri

Adrese Email

Numër Telefoni

Mesazh

Llogaritni normën tuaj të interesit

Përcaktoni sa interes do të paguani për kredinë ose kursimet tuaja me këtë mjet të lehtë për t'u përdorur.

Çmimi i shitjes

Parapagim

Afati i kredisë (vite)

Interesi