Apartament 1+1 Për Shitje në Shëngjin tek "Prishtina Tower"- 83,200€ | 79.24 m² - Century 21 Albania
Shëngjin Albania
ID e Pronës: vision135994

Apartament 1+1 Për Shitje në Shëngjin tek "Prishtina Tower"- 83,200€ | 79.24 m²

83,200 €

Sip. Totale  79m2

Sip. e brendshme  67m2

Dhomat e gjumit  1

Kati 11

Statusi  Në ndërtim

Lloji  Apartament

Shikime:8

Ka hipoteke: Po

Në dispozicion

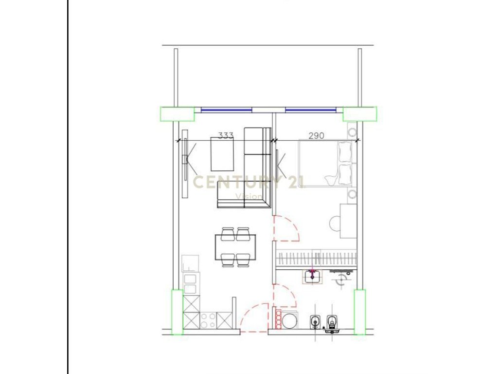
Përshkrim

Century 21 Vision ofron per shitje apartament tek "Prishtina Tower" në Shëngjin
• Tipologji: 1+1
• Ndodhet në katin e 11-të
• Organizohet ne: 1 dhomë gjumi, 1 dhomë ndenjeje, 1 tualet


• Për më shumë informacion, ju lutemi na kontaktoni!

Informacioni i pronës

Ashensor: Po

Tualetet: 1

Dhomen e ndenjes:1

Vendodhja ne Harte
Interest Rate Image

Pyesni për këtë pronë

Të interesuar për këtë pronë? Plotësoni formularin e mëposhtëm dhe ekspertët tanë të pasurive të paluajtshme do t'ju kontaktojnë për më shumë detaje, duke përfshirë shoqërimin në pronë dhe përgjigjen e çdo pyetjeje që mund të keni.

Emri

Mbiemri

Adrese Email

Numër Telefoni

Mesazh

Llogaritni normën tuaj të interesit

Përcaktoni sa interes do të paguani për kredinë ose kursimet tuaja me këtë mjet të lehtë për t'u përdorur.

Çmimi i shitjes

Parapagim

Afati i kredisë (vite)

Interesi